“Night Garden” Basement Case Study

Project snapshot

Location: Seattle, WA
Scope: Finish-out basement to include a primary suite, office/guest, and finished utility room
Design intent: An ethereal night garden—midcentury glow, subtle coastal cues, and starry “glimmer” moments—paired with a basement-appropriate palette of deep blues/greens/browns, warm woods, and touches of metal.

The starting point: a basement with potential

This home sits in a quiet, community-forward Seattle neighborhood—forested landscaping, a nearby church, and a community garden that makes the area feel like a pocket of calm tucked inside the city. Our work began with a simple question: How do we make a basement feel like a destination—not an afterthought?

Rather than fight the reality of lower ceilings and cooler light, we leaned in. Basements are naturally more cave-like, so we designed a space that feels intentionally cocooned: darker, calmer, and softly luminous.

The concept: “night garden” + midcentury glow

The guiding idea was to create a basement that feels like stepping into a nighttime landscape—layered, grounded, and a little magical.

Key concept notes we carried through the process:

  • Celebrate the basement: lower ceilings, deeper colors, and glimmers of light/metals.

  • Unity through color: rich blues, greens, and browns for an earthy connection to the upper level.

  • Stars as a motif: midcentury lighting often references constellations and star shapes; we used that “night sky” cue as a recurring thread.

A personal note: one of the homeowners especially loved midcentury lighting with personality, and the palette we landed on also happened to align with the other homeowner’s favorite colors. Those little overlaps are part of what makes a concept feel like it belongs to the people who live there.

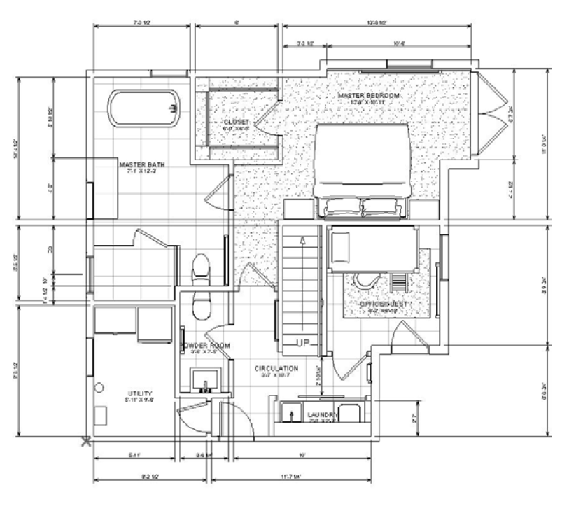
Schematic Design: exploring layouts that protect the “big rocks”

In Schematic Design, we tested multiple plan options to balance three priorities:

  • A primary bath that feels restorative (including the possibility of a deep soaking tub)

  • Storage that works for real life

  • A guest/office solution that doesn’t compromise the sleeping space

Early options explored different relationships between laundry, utilities, guest access, and the primary suite—each one a slightly different answer to the same question: What should feel easiest day-to-day?

The revision that changed everything (and why)

Based on client feedback, we made a key move: relocating the office/guest bedroom. That shift unlocked several improvements:

  • A loft-bed + desk solution for flexible guest/office use

  • A new laundry closet with a utility sink and shelf in the circulation zone

  • An enlarged primary bath that could accommodate a deep soaking tub

  • A split hallway to create a calmer, more intentional entry sequence

  • A small guest powder room, placed back-to-back with the primary toilet to help reduce plumbing complexity

Design is often a series of trade-offs in service of the overall experience. Here, the trade was a traditional full-height closet in the office/guest room—solvable with furniture-based storage or a low closet under the stairs—so the primary suite could feel generous and grounded.

Design Development: making the “night garden” buildable

Once the plan landed, Design Development focused on turning the concept into a cohesive, buildable experience.

Celebrate the architecture (don’t apologize for it)

Basements come with quirks: pipes, soffits, bump-outs, and odd ceiling transitions. Instead of hiding them, we treated them like part of the character—using varied ceiling heights and warm finishes to make the space feel intentional.

Contrast as a comfort strategy

A night garden needs depth. We designed around light vs. dark and matte vs. polished:

  • Darker ceilings and tiled “wrap” moments to create a night-sky effect

  • Warm walls and wood tones to keep the space inviting

  • Brass and glimmering fixtures as “light blossoms” in the garden

The BedCave: a cozy solution for an unusual room

The bedroom’s shape and constraints pushed us toward one of our favorite outcomes: a warm, wood-forward “BedCave.” What began as a practical idea (using wood to address a foundation wall) became a full, enveloping feature.

We also designed space-saving details like built-in niches for shallow floating nightstands and integrated lighting—small moves that make a basement bedroom feel custom rather than compromised.

The part people don’t see: coordination is a design tool

A lot of what makes a basement feel “finished” is decided long before paint and tile.

During early site visits, the framing and rough-in coordination was exceptionally clean—HVAC and piping were neatly tucked between joists, and the layout was reading clearly in the field. That kind of coordination protects ceiling height, keeps sightlines calm, and gives the finish work a fighting chance.

Construction reality: why drawings and finished photos don’t always match

If you’ve ever compared a design presentation to a finished space and thought, Wait—where did that go? you’re not alone.

In the real world, projects evolve during construction. Availability changes. Trades recommend alternates. Budgets tighten. Timelines compress. And when a project is awarded to the lowest bid, it’s especially common for details to be simplified or substituted to keep things moving.

That doesn’t mean the design was “wrong,” and it definitely doesn’t mean anyone made a bad decision. It’s simply the reality of translating a detailed vision into a complex, on-site process with many moving parts.

For this case study, we’re intentionally sharing progress work alongside finished photos—so you can see both the design thinking and the real-world translation.

A few “designed vs. built” lessons from this project

We don’t share these as complaints—we share them because they’re common, and because they’re exactly where design support during construction makes the biggest difference.

  • Bed niches (not executed): The built-in niches on either side of the bed couldn’t be built due to an electrical box location conflict. This was flagged during an early site visit with a request to relocate the boxes, but the change didn’t carry through.

  • Bathroom wrap shelves (not executed): The shelves designed to wrap around the wall were not built due to a lack of finish carpentry support.

  • Chromotherapy system (installed incorrectly): The chromotherapy module was installed in a way that requires manual plug-in operation from a closet and does not deliver the intended color function. The product specs indicate it can be connected to a non-powered switch to operate the white light from outside the steam room; that switch does not appear to have been installed. We’ll recommend the owners have a different electrician review the installation.

One note for context: our scope for this project did not include Construction Administration. That means many field decisions—trade coordination, exact box locations, and on-site adjustments—were made by the build team during construction.

The outcome: a night garden that still reads

Even with a few missed details, the finished spaces still carry the heart of the concept:

  • A deep, enveloping palette that feels intentionally “below grade”

  • Midcentury lighting that adds personality and glow

  • Warm wood moments that make the basement feel like a retreat

A homeowner takeaway

If you’re planning a basement suite, the biggest unlock is aligning early on how field decisions will be handled—especially around lighting locations, built-ins, and specialty systems. A small amount of dedicated coordination time during construction can protect the details that make the design feel intentional.


Rachel Waldron

Waldron Designs was founded by Rachel Waldron (that’s me!). in 2013.

I am so happy designing that it is not unusual to catch me in a giggle as I rev up to do my work. I think of my designs the way that I think of my children- each is unique and has their own personality. It is my job to nurture them and help them grow, not define them.

I got my bachelor's degree in interior design from Washington State University - a CIDA-accredited school - in 2005, immediately moved into a leadership position and have continued designing with passion.

I received my MBA in Marketing in 2012 and launched Waldron Designs in 2013. When I am not designing, you will find me enjoying my precious time with my husband and two spectacular children.

Previous
Previous

Seasonal Design and Mental Health: Architecture That Supports Year-Round Wellness

Next
Next

Maximizing Natural Light in Winter